
Offering detailed MEP drawings that support precise planning, installation, and coordination of building systems.
End-to-End MEP Drafting Expertise Driving Accuracy, Coordination & On-Site Efficiency
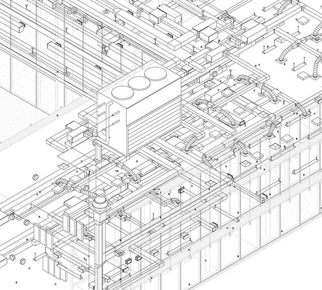
At QeBIM, we specialize in delivering end-to-end MEP Drafting Services that enables accurate coordination and error-free construction. From schematic layouts to installation-ready drawings, we empower architects, engineers, contractors and MEP consultants with clarity and efficiency across every phase of the project.
With a proven track record of 5,000+ MEP drawings delivered, we helped in reducing the on-site clashes by up to 98% and have offered 50% faster design-to-construction turnaround , enabling smooth progress from design to procurement and installation. Backed by 85% repeat business across the USA, UK, EU, Middle East & Australia ,QeBIM has become a trusted drafting partner for global construction projects.
Our expertise also covers Revit MEP Drafting Services, ensuring quality, design accuracy and seamless coordination across disciplines.
25+ Years
12500+
25+
1500+
Complete Spectrum of MEP Drafting Services Under One Roof
Revit MEP Drafting Services
MEP CAD Drafting Services
MEP BIM Drafting Services
Electrical CAD Drafting Services
Plumbing Drafting Services
Mechanical HVAC Drafting
Fire Protection Drafting
Your Reliable Partner for Technically Strong, Code-Compliant & Coordination-Driven Drafting
Certified and experienced mechanical, electrical & plumbing drafting professionals
Coordination-first approach backed by BIM-driven workflows
Strict adherence with project-specific standards

Structured document control and redline update methodology
Expertise in complex commercial, industrial & healthcare buildings
Flexible engagement models — project-based, hourly or remote drafting support
Advantages of MEP Draftings
- Eliminates inter-discipline clashes between mechanical, electrical and plumbing services
- Smooth coordination between designers, contractors and site teams
- Reduces material wastage, delays & costly change orders
- Faster project approvals and installation sequencing
- Enhances building performance and long-term operational efficiency

Advanced MEP Tools Ensuring Accuracy, Collaboration & Buildability








MEP Drafting Excellence Trusted Across Global Construction Sectors
Have any questions? here some answers?


